Линсолс Дом
8 (800) 101 98-91
НАШИ ПРОЕКТЫ

Modern Life

ДОМ

Стоимость дома 8,95 млн руб.

Площадь дома 150м2.

Модерн Лайф - это современный дом в один уровень для комфортной жизни со свободной планировкой под заказчика.
Мы учли все основные пожелания наших покупателей и превратили их в идеальный, стильный и весьма доступный проект!

Цена может измениться только при случае ваших дополнительных пожеланий.

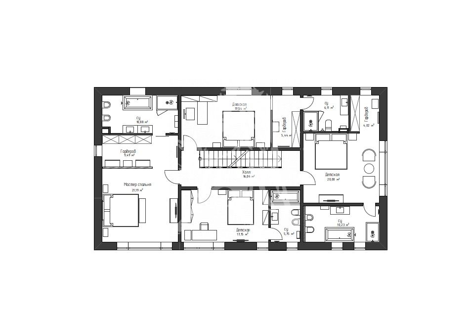
ПЛАНИРОВКА СВОБОДНАЯ
Пространство дома может быть зонировано на 150 м2 метрах площади:
⠀⠀⠀⠀
Просторная гостиная - 25 м².
Большая и удобная кухня - 30,9 м²
Панорамные окна
Ванные комнаты (санузел) - 4,6 м²
Хозяйская спальня, комплекс (спальня, ванная, гардероб) - 25 м²
Гостевая/детская комната - 10,1 м²
Кабинет 11 м²
Обширная терраса - 65 м²


Реализованный проект в который входят
- ФУНДАМЕНТ
- ЗДАНИЕ
- ПЕРЕКРЫТИЯ
- КРОВЛЯ УТЕПЛЕННАЯ
- ФАСАДНЫЕ РАБОТЫ
- ОСТЕКЛЕНИЕ И ДВЕРИ
- СИСТЕМА ЭЛЕКТРОСНАБЖЕНИЯ
- СИСТЕМА ВОДОСНАБЖЕНИЯ
- ВНУТРЕННЯЯ ОТДЕЛКА
- 5 ЛЕТ ГАРАНТИЯ

ОСТАВИТЬ ЗАЯВКУ

Захотели купить это дом или есть пожелания пожалуйста, оставьте заявку, наши специалисты свяжутся с Вами в ближайшее время. Спасибо Вам!

Есть пожелания подругой планировке, пожалуйста сообщите об этом здесь и наши специалисты свяжутся с Вами в ближайшее время. Спасибо Вам!

ИЗМЕНИТЬ ПЛАНИРОВКУ
СкайДэнс Дом

Планирование пространства дома свободное

Cookie-файлы
Настройка cookie-файлов
Детальная информация о целях обработки данных и поставщиках, которые мы используем на наших сайтах
Аналитические Cookie-файлы Отключить все
Технические Cookie-файлы
Другие Cookie-файлы
Мы используем файлы Cookie для улучшения работы, персонализации и повышения удобства пользования нашим сайтом. Продолжая посещать сайт, вы соглашаетесь на использование нами файлов Cookie. Подробнее о нашей политике в отношении Cookie.
Понятно Подробнее
Cookies